cloison verte























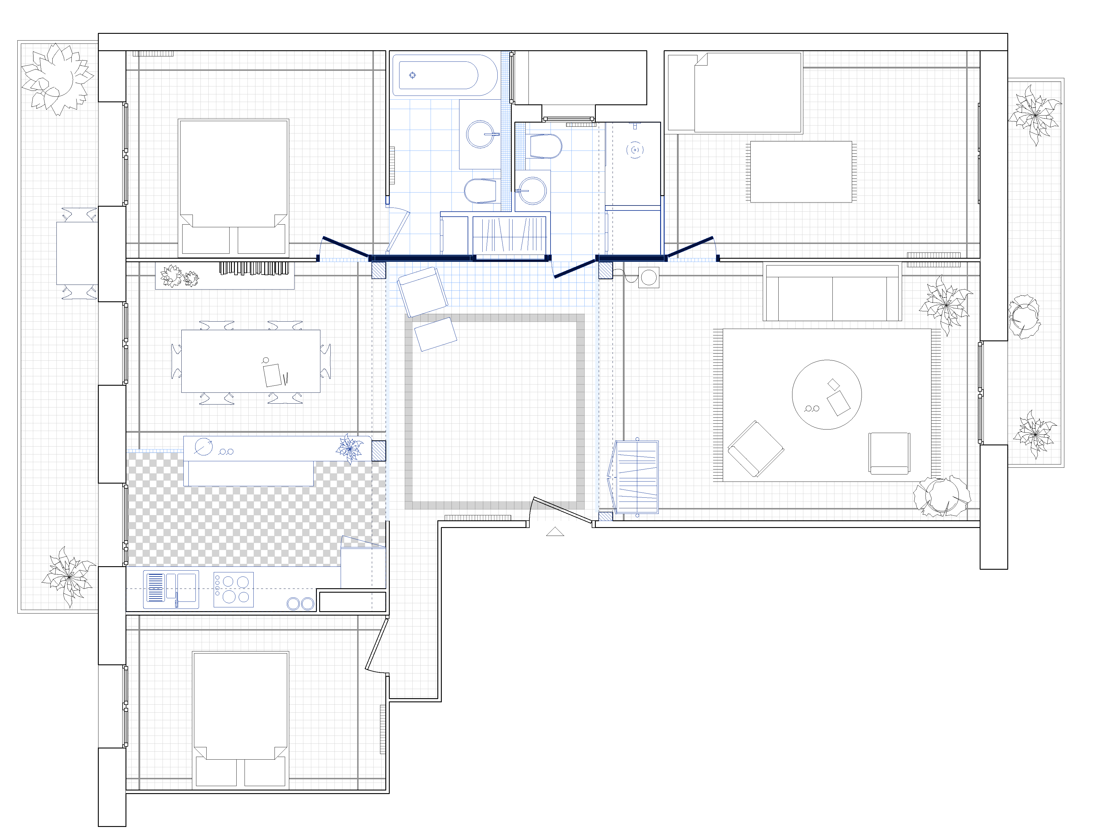
Existant



Projet


Aix-En-Provence I 2021 I Rénovation d'un appartement I privé I 45.000 € HT I 90 m2 I mission complète

photographies:
Edwige Lamy