







Existant

Projet


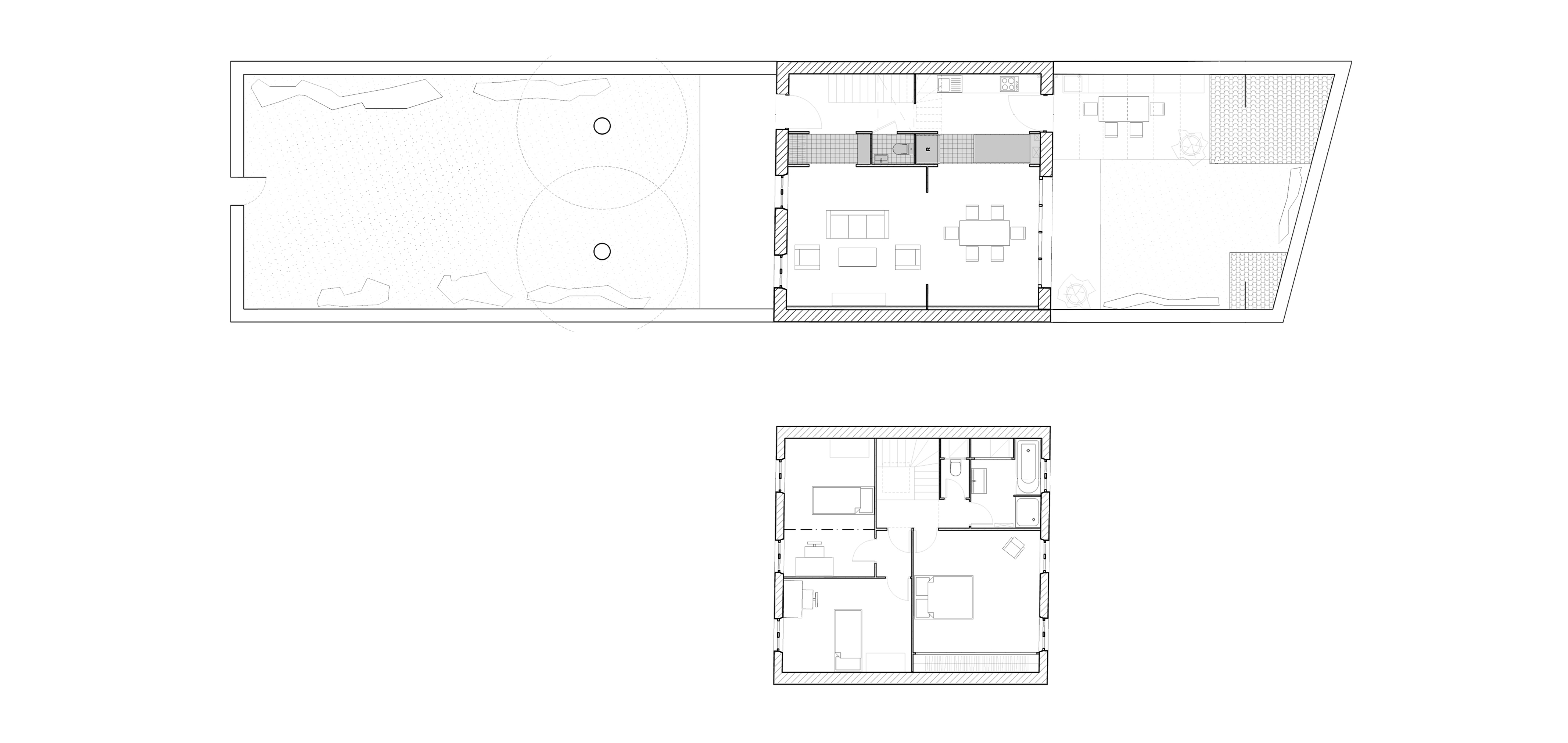
Marseille I 2016-17 I Rénovation d'une maison de ville I privé I 110.000 € HT I 110 m2 I mission complète
La rénovation et le réaménagement de l’espace passent par une conception pratique de rangements élégants.
Ces rangements structurent les espaces du rez-de-chaussée et dissimulent les éléments techniques de la maison. La circulation entre les différentes pièces est facilitée.
Un réaménagement de l'étage permet de trouver une chambre et un wc supplémentaires.
Le meuble en bois, central, sur mesure, crée à lui seul l’ambiance chaleureuse de la maison.
photographies:
Edwige Lamy