
























Peynier I 2018 I Construction d'une maison I Privé I 320.000 € HT I 190 m2 I mission complète
Une maison pour un couple et leurs 3 enfants.
La famille souhaite quitter Marseille et commencer une nouvelle vie à la campagne.
Elle trouve une grande parcelle de 4000 m2 située sur une colline à l’entrée d’un village de l’arrière-pays aixois. Déboisée, le terrain laisse apparaître des talus de terre, vestiges de restanques agricoles.
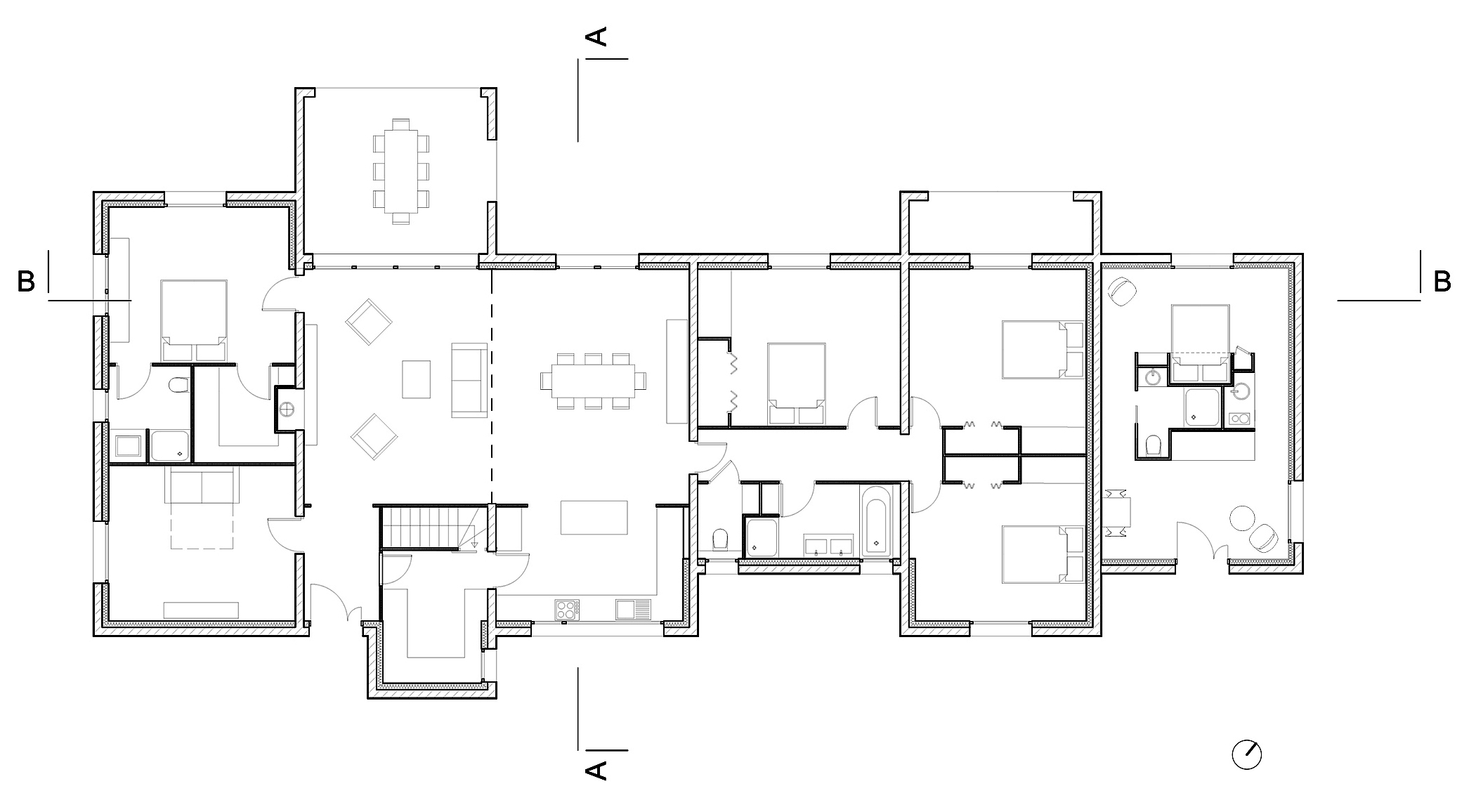
La construction se compose de 6 volumes. Chaque volume prend la forme d’une maisonnette :
· 1 maison pour la suite parentale et une bibliothèque ;
· 2 maisons pour les espaces partagés, entrée, buanderie, salon, salle à manger et cuisine ;
· 1 maison regroupant la chambre de l’aîné et les pièces d’eau ;
· 1 maison pour les 2 chambres des jumeaux ;
· 1 maison pour les amis, avec un salon, une kitchenette, une salle de bains et une chambre.
Les maisons sont disposées sur le haut de la parcelle pour profiter de l’exposition sud-est et des vues sur le paysage collinaire. Elles sont décalées les unes par rapport aux autres pour dégager des espaces extérieurs qui leur sont propres.
La réinterprétation de l'archétype de la maison à toit en pentes crée des volumes intérieurs à la fois généreux et rassurants, et des volumes extérieurs qui rentrent en résonance avec le tissu de maisons individuelles diffus alentour.
photographies:
Edwige Lamy