
Existant
plan masse

plan





Projet
plan masse

plan













Pavillon
Rénovation d’un patrimoine ordinaire
Le Beausset I 2022 I Rénovation d'une maison I privé I 110.000 € HT I 140 m2 I mission complète
Prix réhabilitation Archicote 2024



L’agence MM Architectes place la rénovation au coeur de son travail et notamment la rénovation de maisons individuelles construites entre les années 50 et 90. Ces maisons ne répondent plus aux exigences climatiques et aux modes de vie contemporains.
Les aménagements intérieurs sont surdéterminés et paralysés par des usages d’une autre génération.
Les constructions sont mal isolées et consommatrices d’une énergie carbonée aujourd’hui remise en cause.
L’habitat pavillonnaire est un produit standardisé à coup modéré qui doit convenir au plus grand nombre.
Les systèmes construits sont donc efficaces et les volumes simples.
Les sites d’implantation sont le plus souvent en pleine campagne.
Nous tentons de nous appuyer sur ces qualités pour mettre en valeur les maisons que nous rénovons.
Nous concevons des espaces généreux, ouverts sur le paysage, laissant place à l’indétermination, pour ainsi donner plus de possibilités d’aménagement aux habitants.
Pour le projet « Pavillon », la maîtrise d’ouvrage est un couple avec un enfant. La famille a vendu son appartement marseillais (rénové par l’agence en 2014) pour s’installer dans une maison individuelle située au Beausset en plaine agricole, entre terres viticoles et habitats pavillonnaires, et construites dans les années 80.
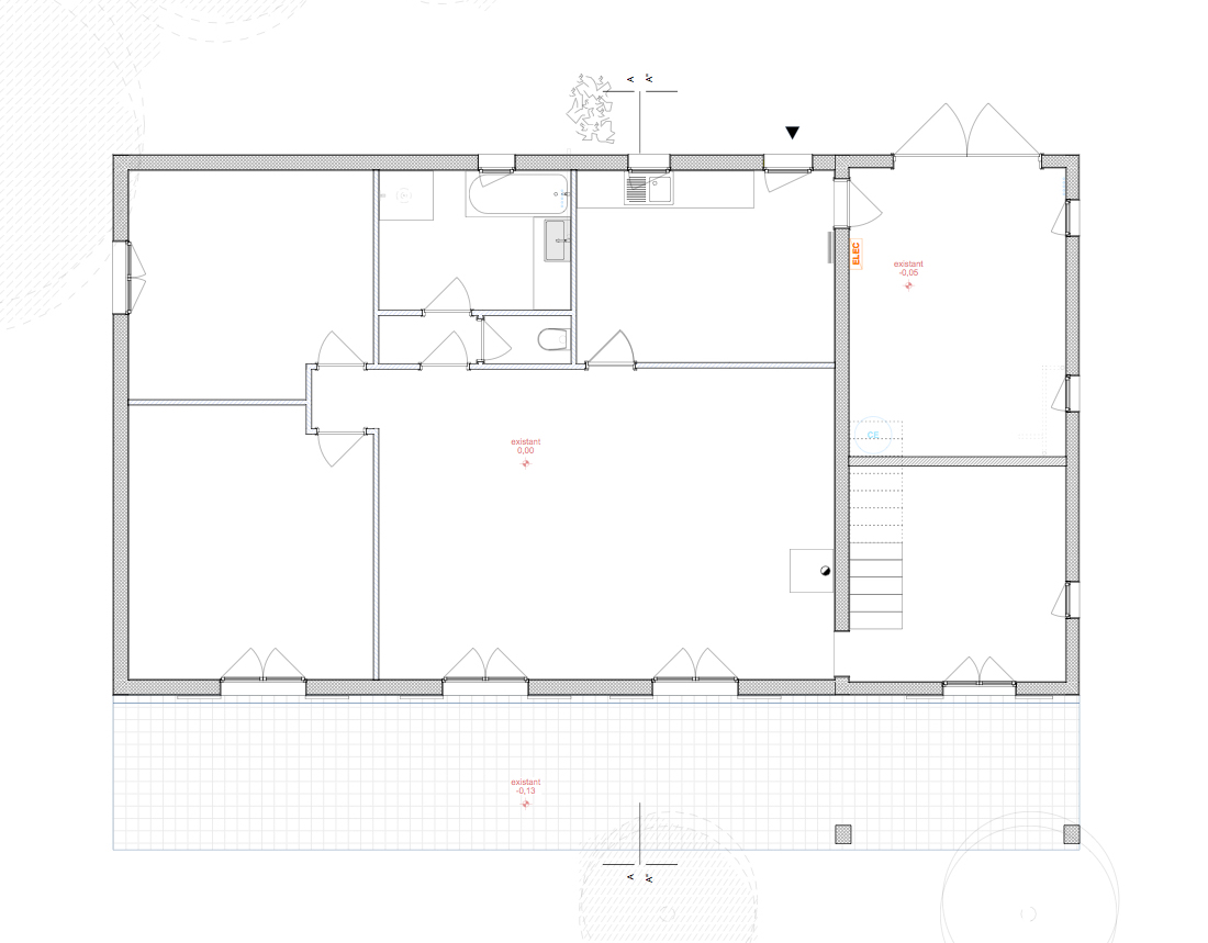
La maison existante se compose d’un volume rectangulaire en rez-de-chaussée avec au nord une entrée-cuisine, un garage, trois chambres, une salle de bains, un wc, un auvent sur terrasse. Chaque pièce est cloisonnée et s’organise autour du salon-salle à manger orienté au sud. À l’étage, au niveau de la surélévation du garage, se trouvent deux chambres et une salle de bains.
Les espaces sont peu ouverts sur le jardin et offrent peu de vue sur le paysage.
Matériaux existants : structure périphérique en moellon de béton cellulaire sans refend intérieur, charpente en fermettes de pin dissimulées derrière un faux plafond droit en plaques de plâtre, tuiles canal en terre cuite, menuiseries PVC blanc. Chauffage par convecteur électrique complété par un poêle à bois. Eau chaude sanitaire par chauffe-eau électrique, absence d’isolation.
Le projet propose de décloisonner le rez-de-chaussée et de révéler la charpente pour créer un grand espace traversant ouvert sur le paysage et répondant aux usages de la famille. L’entrée et la cuisine s’organisent de part et d’autre d’un volume technique comprenant la buanderie et le cellier. Le salon-salle à manger s’ouvre sur le jardin au sud et offre des vues sur les collines à l’ouest.
Les trois chambres à l’est sont conservées. Le garage est transformé en chambre parentale. Les chambres sont ainsi regroupées et séparées par un bloc servant regroupant une salle de bains, un wc, le poêle à bois et un rangement.
Matériaux mis en œuvre : isolation extérieure des murs en laine de verre, isolation de la toiture mixte chanvre, coton et lin. L’isolation extérieure permet la mise en valeur de la charpente et une volumétrie confortable. Eau chaude sanitaire et chauffage à eau par pompe à chaleur air/air. Menuiserie bois double vitrage en bois de mélèze des Alpes. Réemploi du poêle à bois et des tuiles canal en terre cuite. Travaux de plomberie, électricité, plâtrerie et peinture réalisés en auto-construction par la maitrise d’ouvrage.
Publication:
Ordre des architectes
Cote Magazine